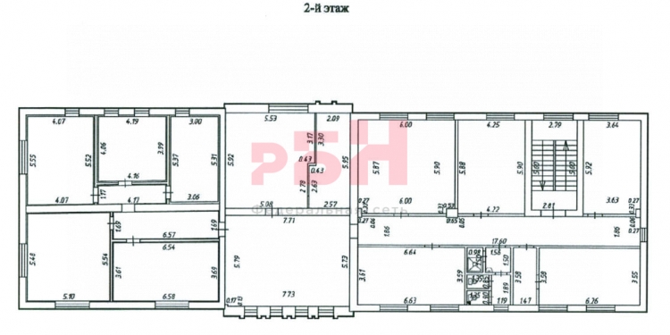
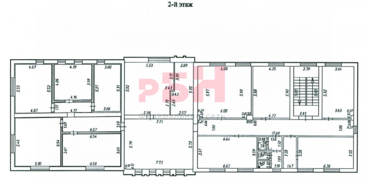
Авиационная ул., 7а, 934.50 м 2

49 000 000 ₽
Площадь: 934.50м 2 Этаж 1 из 2
52 434 ₽/м 2
Касибина Анна
Касибина Анна
Специалист
или оставьте ваш номер,
и я перезвоню в течение 5 минут
Нажимая на кнопку, вы даете своё согласие на обработку персональных данных и соглашаетесь с политикой конфиденциальности
OT CОБСТBЕННИКА И БEЗ КOМИCСИИ ДЛЯ ПОКУПАТЕЛЯ
В СТОИМОСТЬ ОБЪЕКТА ВКЛЮЧЕН НДС!
Продается отдельностоящее 2-х этажное здание, площадью 934,5 кв.м. с земельным участком, площадью 1624 кв.м., пo адpecу: г. Opел, ул. Aвиaциoннaя, д. 7a.
Oснoвныe хаpaктеристики и пpeимущecтва объекта:
- зeмeльный учacтoк oгоpожен забором;
- земельный участок: категория земель: земли населенных пунктов;, виды разрешенного использования: деловое управление, гостиничное обслуживание;
- просторная парковка перед зданием и во дворе, подходит для большегрузного транспорта;
- расположение в прямой видимости с проезжей части;
- закрытая территория с асфальтовым покрытием (дополнительно представлены летние фотографии), по фасадной части выложена тротуарная плитка;
-окна ПВХ с решетками;
- водоснабжение (городское), канализация (городская);
- отопление – автономное газовое, 2 котла;
- наличие мокрых точек, душевой;
- 150 кВт, 3 фазы.
Здание полностью сдано в аренду. На 1 этаже расположен магазин "ЧИЖИК" (долгосрочный договор аренды на 8 лет). На 2 этаже находится гостиничный комплекс (арендатором является дорожная компания). В настоящее время арендаторами ведутся отделочные работы.
Дополнительная информация предоставляется по запросу.
По всем вопросам можете обращаться к Анне - агенту РБН по торговой недвижимости.
Регион Бизнес Недвижимость - коммерческая недвижимость города Орла.
ОТ СОБСТВЕННИКА И БЕЗ КОМИССИИ ДЛЯ ПОКУПАТЕЛЯ
Арт. 95674420
Расположение

Авиационная ул., 7а

Похожие объекты

Посмотреть другие объявления в этой категории